TOPlist

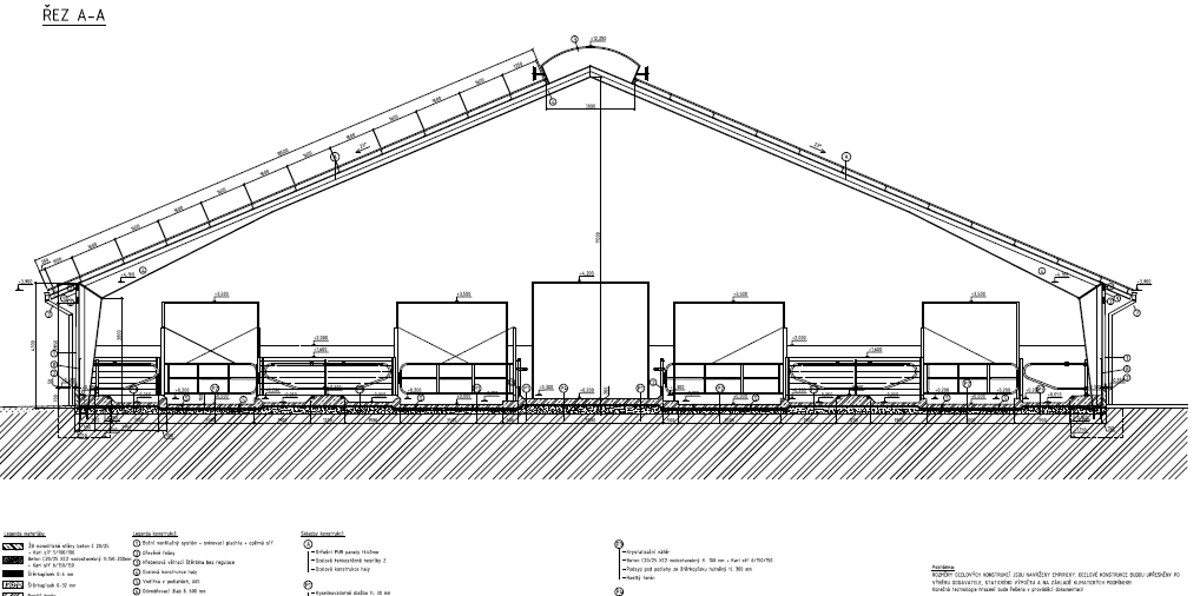
Modernizace farmy Rancířov – Rhea Holding – Uherčice AGRO, spol. s. r. o. DSP

Kompletní modernizace farmy – navrhovaný stav 492 DJ

členění stavebních objektů:

  • SO 01 Novostavba produkční stáje 369 ks
  • SO 02 Novostavba dojírny 2x12
  • SO 03 Venkovní individuální boxy pro telata
  • SO 04 Silážní žlab 6 500 m3
  • SO 05 Hlavní skladovací jímka
  • SO 06 Seník 10 000 m3
  • SO 07 Sklad koncentrovaných krmiv

back